Met een eigen account kun je panden volgen, opslaan als favoriet, je zoekprofiel opslaan en jouw eigen notities bij een huis maken.
Algemeen
Verrassend ruime eindwoning voor het gezin dat wat meer wil! De woning beschikt over een ruime woonkamer, vier slaapkamers, ruime berging, veranda en een dakterras. Gelegen in een rustige kindvriendelijke straat in de gewilde wijk de Overlaet.
| Kenmerken | |
|---|---|
| Alle kenmerken | |
| Type object | Woonhuis, eengezinswoning, eind woning |
| Bouwperiode | 1995 |
| Status | Verkocht |
| Aangeboden sinds | Dinsdag 3 juni 2025 |
Kenmerken
| Overdracht | |
|---|---|
| Referentienummer | 05914 |
| Vraagprijs | € 535.000,- k.k. |
| Status | Verkocht |
| Aanvaarding | In overleg |
| Aangeboden sinds | Dinsdag 3 juni 2025 |
| Laatste wijziging | Vrijdag 12 december 2025 |
| Bouw | |
|---|---|
| Type object | Woonhuis, eengezinswoning, eind woning |
| Soort bouw | Bestaande bouw |
| Bouwperiode | 1995 |
| Dakbedekking | Bitumen Dakpannen |
| Type dak | Kap met plat |
| Isolatievormen | Dubbel glas Volledig geïsoleerd |
| Oppervlaktes en inhoud | |
|---|---|
| Perceeloppervlakte | 214 m² |
| Woonoppervlakte | 131,3 m² |
| Inhoud | 465 m³ |
| Oppervlakte externe bergruimte | 21,1 m² |
| Oppervlakte gebouwgebonden buitenruimte | 30 m² |
| Indeling | |
|---|---|
| Aantal bouwlagen | 3 |
| Aantal kamers | 5 (waarvan 4 slaapkamers) |
| Aantal badkamers | 1 (en 1 apart toilet) |
| Tuin | |
|---|---|
| Type | Achtertuin |
| Hoofdtuin | Ja |
| Oriëntering | Noord west |
| Heeft een achterom | Ja |
| Staat | Normaal |
| Energieverbruik | |
|---|---|
| Energielabel | A |
| Energie-index | 9,99 |
| CV ketel | |
|---|---|
| CV ketel | Intergas |
| Warmtebron | Gas |
| Bouwjaar | 2022 |
| Combiketel | Ja |
| Eigendom | Eigendom |
| Uitrusting | |
|---|---|
| Warm water | CV-ketel |
| Verwarmingssysteem | Airconditioning Centrale verwarming Vloerverwarming (gedeeltelijk) |
| Badkamervoorzieningen | Douche Toilet Wastafelmeubel |
| Heeft airco | Ja |
| Tuin aanwezig | Ja |
| Heeft schuur/berging | Ja |
| Heeft zonnepanelen | Ja |
| Kadastrale gegevens | |
|---|---|
| Kadastrale aanduiding | 's-Hertogenbosch I 1979 |
| Perceeloppervlakte | 214 m² |
| Eigendomsituatie | Eigen grond |
Beschrijving
Verrassend ruime eindwoning voor het gezin dat wat meer wil! De woning beschikt over een ruime woonkamer, vier slaapkamers, ruime berging, veranda en een dakterras. Gelegen in een rustige kindvriendelijke straat in de gewilde wijk de Overlaet.
Indeling
Highlights Meester van Ierselstraat 8 :
* Ruim woonoppervlak
* Brede woonkamer
* Vier slaapkamers
* 10 zonnepanelen
* Extra berging
* 4 ruime slaapkamers
* Dakterras
* Dakkapel over gehele breedte
* Veranda
Indeling Begane grond Meester van Ierselstraat 8 :
Hal:
In de hal bevindt zich de entree, meterkast voorzien van 6 groepen en 2 aardlekschakelaars. Keurig afgewerkt hangtoilet voorzien van fonteintje en geheel betegeld tot het plafond.
In de hal bevindt zich tevens een praktische garderobekast en extra berging onder de trap.
Vanuit de hal heeft u toegang tot zowel de woonkamer als de keuken.
Woonkamer:
Via de hal bereikt u de woonkamer en halfopen keuken.
De woonkamer is voorzien van een tegelvloer en gestuukt geschilderde wanden. De gehele woonkamer is voorzien van vloerverwarming.
Vanuit de woonkamer kunt u via openslaande tuindeuren rechtstreeks naar de tuin.
Keuken:
De halfopen keuken is aan de achterzijde van de woning gesitueerd. De hoekkeuken beschikt over een eiken keukenblok met kunststof blad en diverse inbouwapparatuur zoals een afwasmachine, oven, afzuigkap, ijskast, gaskookplaat en veel kastruimte. Aansluitend aan de keuken bevindt zich een handige bergkast. Vanuit de keuken kunt u ook naar de tuin.
* Ruim woonoppervlak
* Brede woonkamer
* Vier slaapkamers
* 10 zonnepanelen
* Extra berging
* 4 ruime slaapkamers
* Dakterras
* Dakkapel over gehele breedte
* Veranda
Indeling Begane grond Meester van Ierselstraat 8 :
Hal:
In de hal bevindt zich de entree, meterkast voorzien van 6 groepen en 2 aardlekschakelaars. Keurig afgewerkt hangtoilet voorzien van fonteintje en geheel betegeld tot het plafond.
In de hal bevindt zich tevens een praktische garderobekast en extra berging onder de trap.
Vanuit de hal heeft u toegang tot zowel de woonkamer als de keuken.
Woonkamer:
Via de hal bereikt u de woonkamer en halfopen keuken.
De woonkamer is voorzien van een tegelvloer en gestuukt geschilderde wanden. De gehele woonkamer is voorzien van vloerverwarming.
Vanuit de woonkamer kunt u via openslaande tuindeuren rechtstreeks naar de tuin.
Keuken:
De halfopen keuken is aan de achterzijde van de woning gesitueerd. De hoekkeuken beschikt over een eiken keukenblok met kunststof blad en diverse inbouwapparatuur zoals een afwasmachine, oven, afzuigkap, ijskast, gaskookplaat en veel kastruimte. Aansluitend aan de keuken bevindt zich een handige bergkast. Vanuit de keuken kunt u ook naar de tuin.
Eerste verdieping
Eerste verdieping:
Op de eerste verdieping bevinden zich drie slaapkamers en de badkamer.
Slaapkamers:
De slaapkamers op de eerste verdieping zijn ruim van afmeting. De vloeren van de slaapkamers zijn voorzien van laminaat.
Badkamer:
De geheel betegelde badkamer beschikt over een whirlpool, designradiator, hangtoilet, douche met thermostaatkraan en een wastafelmeubel in lichte kleurstelling.
Op de eerste verdieping bevinden zich drie slaapkamers en de badkamer.
Slaapkamers:
De slaapkamers op de eerste verdieping zijn ruim van afmeting. De vloeren van de slaapkamers zijn voorzien van laminaat.
Badkamer:
De geheel betegelde badkamer beschikt over een whirlpool, designradiator, hangtoilet, douche met thermostaatkraan en een wastafelmeubel in lichte kleurstelling.
Tweede verdieping
Tweede verdieping:
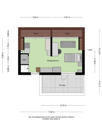
Via de vaste trap is de tweede verdieping te bereiken waar zich de vierde slaapkamer bevindt alsmede een opbergzolder. Deze verdieping is circa 31 m² groot en deze ruimte geniet van veel lichtinval door middel van een dakkapel aan de ene zijde en aan de andere zijde toegang tot het dakterras. Het dakterras is 11 m² groot. In de slaapkamer bevinden zich diverse vaste opbergkasten langs de wanden en een vaste kastenwand aan de voorzijde. De gehele kamer is voorzien van tapijt en heeft een airco. De CV en wasmachineruimte is door middel van een wand gedeeltelijk gescheiden van de slaapkamer. Hier staat de CV-opstelling Intergas uit 2022.
Tevens is deze ruimte voorzien van een extra opbergzolder waardoor een praktische opbergruimte is gecreëerd.
Tuin:
De nagenoeg onderhoudsvriendelijke achtertuin beschikt over een veranda en een eigen achterom.
Berging:
De berging, met een vloeroppervlak van 21 m², bestaat uit twee delen; een opslag- en een werkruimte. De toegang aan de achterzijde is een elektrisch rolluik, waardoor het zeer handig is voor motors om binnen te komen. Bovendien is de werkruimte geïsoleerd.
Duurzame woning:
De woning is van bouwjaar 1995 en is goed geïsoleerd
Het gehele huis is voorzien van ramen van HR ++ glas. Combi-ketel is vernieuwd in 2022.
Op het dak liggen 10 zonnepanelen geplaatst in 2023
Via de vaste trap is de tweede verdieping te bereiken waar zich de vierde slaapkamer bevindt alsmede een opbergzolder. Deze verdieping is circa 31 m² groot en deze ruimte geniet van veel lichtinval door middel van een dakkapel aan de ene zijde en aan de andere zijde toegang tot het dakterras. Het dakterras is 11 m² groot. In de slaapkamer bevinden zich diverse vaste opbergkasten langs de wanden en een vaste kastenwand aan de voorzijde. De gehele kamer is voorzien van tapijt en heeft een airco. De CV en wasmachineruimte is door middel van een wand gedeeltelijk gescheiden van de slaapkamer. Hier staat de CV-opstelling Intergas uit 2022.
Tevens is deze ruimte voorzien van een extra opbergzolder waardoor een praktische opbergruimte is gecreëerd.
Tuin:
De nagenoeg onderhoudsvriendelijke achtertuin beschikt over een veranda en een eigen achterom.
Berging:
De berging, met een vloeroppervlak van 21 m², bestaat uit twee delen; een opslag- en een werkruimte. De toegang aan de achterzijde is een elektrisch rolluik, waardoor het zeer handig is voor motors om binnen te komen. Bovendien is de werkruimte geïsoleerd.
Duurzame woning:
De woning is van bouwjaar 1995 en is goed geïsoleerd
Het gehele huis is voorzien van ramen van HR ++ glas. Combi-ketel is vernieuwd in 2022.
Op het dak liggen 10 zonnepanelen geplaatst in 2023
Bijzonderheden
Locatie:
De woning aan de Meester van Ierselstraat 8 ligt in de jonge wijk ‘de Overlaet’.
Het centrum is op ca. 5 minuten te bereiken met de fiets. In het centrum vindt u alle dagelijkse voorzieningen, met onder andere winkels, een bibliotheek en het NS-station. De Overlaet is een wijk waar veel jonge gezinnen wonen, met een eigen kleuter- en basisschool. De A2 en A50 met aansluitingen naar Waalwijk/Tilburg, Eindhoven, Oss/Nijmegen en Utrecht/Amsterdam zijn allemaal binnen een paar minuten te bereiken. Aan het einde van de straat ligt een speelplaats.
Heeft u interesse in deze woning aan de Meester van Ierselstraat 8 te Rosmalen, maak dan vrijblijvend een afspraak voor een bezichtiging!
De woning aan de Meester van Ierselstraat 8 ligt in de jonge wijk ‘de Overlaet’.
Het centrum is op ca. 5 minuten te bereiken met de fiets. In het centrum vindt u alle dagelijkse voorzieningen, met onder andere winkels, een bibliotheek en het NS-station. De Overlaet is een wijk waar veel jonge gezinnen wonen, met een eigen kleuter- en basisschool. De A2 en A50 met aansluitingen naar Waalwijk/Tilburg, Eindhoven, Oss/Nijmegen en Utrecht/Amsterdam zijn allemaal binnen een paar minuten te bereiken. Aan het einde van de straat ligt een speelplaats.
Heeft u interesse in deze woning aan de Meester van Ierselstraat 8 te Rosmalen, maak dan vrijblijvend een afspraak voor een bezichtiging!