Beschrijving
Vrijstaand wonen op een fraaie authentieke locatie in Hintham-Noord. De woning is ontworpen door een architect voor zijn eigen gezin en daardoor natuurlijk een fantastisch ontworpen woning.
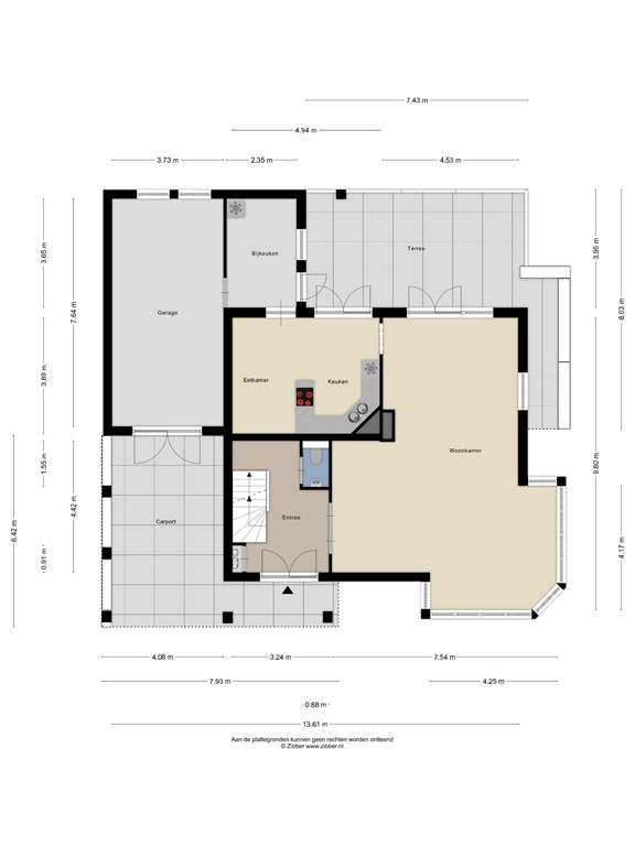
Indeling
Highlights Tweeberg 46 Rosmalen
* Onder architectuur gebouwd (2001)
* Souterrain
* Dubbele bewoning mogelijk
* Woonoppervlak 374 m²
* Totaal gebruiksoppervlak van: 440 m²
* inhoud woning 1.631 m³
* Tuin op zuidoosten
* Vloerverwarming
* ingebouwde rolluiken
* Diverse gebruiksmogelijkheden
Algemeen:
De woning is met zorg gebouwd met kwalitatieve en duurzame materialen zoals:
- Koperen dakgoten
- Keramische dakpannen
- Kunststof kozijnen met houtnerf van uitstekende Duitse kwaliteit
- Kantelkiepramen met HR ++ glas
- Exclusieve handvormstenen
Indeling begane grond Tweeberg 46 Rosmalen
Hal:
De royale overdekte entree geeft toegang tot de ruime hal met daarin opgenomen garderobe, toiletruimte met fonteintje en meterkast. De uitgebreide meterkast beschikt over 11 groepen, 4 aardlekschakelaars en krachtstroomvoorziening.
Tevens toegang tot het vrijhangende toilet met fonteintje.
Via hardhouten eiken trappen gaat u naar de eerste en tweede verdieping.
Woonkamer:
De comfortabele, gezellige living (circa 62 m²) met diverse zithoeken is voorzien van dubbele ronde deuren met roedenverdeling. De vloeren zijn voorzien van vloerverwarming.
De erker geeft veel licht in de kamer en aan de achterzijde tuindeuren naar het terras.
Met de mogelijkheid tot het aansluiten van een haard is rekening gehouden.
Op diverse plaatsen in de woning inbouwspots met dimmers, de veranda is eveneens voorzien van inbouwspots.
Vanuit de living en eetkeuken toegang naar de overdekte veranda en de diverse tuinterrassen gelegen op het zuidoosten.
Keuken:
Keukenblok in U-vorm voorzien van diverse inbouwapparatuur zoals een koelkast, keramische kookplaat en afzuigkap. Tevens inbouwverlichting en ruim aantal stopcontacten.
Bijkeuken:
De bijkeuken is de verbinding tot de veranda, de keuken en de kantoorruimte.
In de bijkeuken heeft u de mogelijkheid tot aansluiten van uw wasapparatuur
Kantoor
De voormalige garage is verbouwd tot kantoorruimte. Ideale plek in de woning voor werken aan huis of speelkamer voor de kinderen. Uiteraard ook nog steeds te gebruiken als garage.
Eerste verdieping
Eerste verdieping Tweeberg 46 Rosmalen
Via de fraaie trappartij uit de hal kom je op ruime overloop welke toegang geeft tot vier slaapkamers, waaronder de royale ouderslaapkamer , een separaat toilet en de badkamer.
De royale complete badkamer voorzien van ligbad, douchecabine en een meubel met vaste wastafel.
Tweede verdieping
Tweede verdieping Tweeberg 46 Rosmalen
De tweede verdieping is enkel in gebruik als opslagruimte. Door het inbrengen van dakramen zouden hier nog twee slaapkamers extra kunnen worden gecreëerd.
Overige verdiepingen
Souterrain Tweeberg 46 Rosmalen
Via de hal is er een trap naar het souterrain.
Het souterrain kan gebruikt worden voor diverse doeleinden.
Door alle aanwezige voorzieningen is het souterrain zeer geschikt voor werken aan huis, een bed en breakfast of een aanleunwoning.
Het souterrain is voorzien met kunststof kozijnen met openslaande dubbele tuindeuren.
vanwaar je direct toegang tot de sfeervolle tuin hebt. Daarnaast biedt het souterrain nog een extra ruimte, welke naar eigen wens in te richten is.
Tuin
Tuin, carport en overkapping.
De diepe tuin ligt op het zuidoosten en daarnaast is er een achterom, wat extra gemak biedt.
Aan de voorzijde bevindt zich een fraai aangelegde voortuin voorzien van twee buitenkranen.
Er is volop ruimte om diverse auto’s te parkeren. Voor de garage deuren bevindt zich een carport.
Bijzonderheden
Locatie:
De woning is gelegen in de Rosmalense wijk “Hintham-Noord” wat door de groei van de gemeente in de bebouwde kom van ’s-Hertogenbosch komen te liggen De bebouwing aan de Tweeberg 46 Rosmalen is gevarieerd, met woningen die zijn gebouwd tussen 1902 en 2023.
In de directe omgeving zijn diverse voorzieningen aanwezig. Zo bevindt de dichtstbijzijnde wijk winkelcentrum met twee supermarkten op slechts 0,4 km afstand en is basisschool op 0,7 km afstand gelegen. Het treinstation 's-Hertogenbosch Oost ligt op een afstand van 2,8 km, wat zorgt voor goede bereikbaarheid.
Eveneens vinden we in de nabijheid natuurgebieden zoals bijvoorbeeld de Oosterplas.
De woning heeft een goede aansluiting op het wegennet zoals de A59 en de A2.
Kortom: Een karakteristiek huis met volop mogelijkheden, gelegen op een fijne en centrale locatie met een ruim woonoppervlak en diverse gebruiksmogelijkheden, zoals een atelier, kantoor, aan huis gebonden beroep, mantelzorgwoning of een bed and breakfast.
Bent u nieuwsgierig naar deze woning gelegen aan de Tweeberg 46 Rosmalen, maak dan gerust een afspraak voor een bezichtiging van deze bijzondere woning.
* Gebruiksoppervlak woning: 374 m²
* Gebruiksoppervlak overige inpandige ruimte: ± 65 m²
* Overkappingen 97 m²
* Bruto inhoud 1.631 m³
* Bouwjaar 2001
* Perceel ca. 780 m²
* CV installatie Remeha Calenta 2012
Plattegronden
171782485_1540706_tweeb_begane_grond_first_design_20250423_987382.jpg
171782485_1540706_tweeb_eerste_verdiepi_first_design_20250423_3ae4e3.jpg
171782485_1540706_tweeb_zolder_first_design_20250423_f927ed.jpg
171782485_1540706_tweeb_souterrain_first_design_20250423_7011e0.jpg