Beschrijving
Vrijstaande woning met bedrijfsruimte tegen het centrum van ’s-Hertogenbosch. Dubbele bewoning mogelijk. Het object is strategisch gelegen, op slechts een steenworp afstand van zowel de snelweg als het treinstation.
Indeling
Highlights Rietveldenweg 11-11B ‘s-Hertogenbosch:
• Ruim woonoppervlak
• Centrumlocatie
• Bedrijfscategorie tot 3.2
• Populair bedrijventerrein
• Geschikt voor MKB ondernemers
Maten Rietveldenweg 11-11B ‘s-Hertogenbosch:
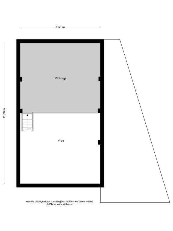
Bedrijfswoning: 134,1 m²
(begane grond: 77,2 m² - eerste verdieping: 47,2 m² en zolder 9,7 m²)
Aanleunwoning of kantoorruimte: 84,1 m²
Bedrijfshal 1: 22,3 m²
Bedrijfshal 2: 115,3 m²
Bedrijfshal 3: 36,9 m²
perceelgrootte 635 m²
Indeling Rietveldenweg 11-11B ‘s-Hertogenbosch:
Bedrijfswoning: entree, woonkamer, keuken, bijkeuken en toilet. De eerste verdieping bestaat uit een twee slaapkamers, badkamer en bergruimte. Via vlizotrap naar de zolderruimte.
Kantoorruimte of aanleunwoning:
Kantoor/woonkamer, slaapkamer, badkamer toilet en berging
Houten berging voor woningen.
De bedrijfsruimte ter grootte van 115,3 m² en een bovenvloer van 36,9 m² zijn verdeeld in twee ruimten en heeft een functionele indeling.
De bedrijfsruimte is voorzien van een betonvloer, één elektrisch bedienbare overheaddeur, krachtstroom en TL-opbouwarmaturen.
Parkeren
Op eigen terrein is parkeergelegenheid aanwezig, daarnaast kan er ook in de directe omgeving van het object worden geparkeerd. Het terrein is afgesloten met een hek
Bijzonderheden
Bestemming Rietveldenweg 11-11B ’s-Hertogenbosch:
De woning met bedrijfs-/kantoorruimte is naar opgave van de gemeente ’s-Hertogenbosch gelegen binnen het thans vigerende bestemmingsplan Bedrijventerrein De Rietvelden, De Vutter, Het Ertveld en heeft hierin de bestemming Bedrijventerrein en is als zodanig bestemd voor ondernemingen in de categorieën 1 tot en met 3.2 van de bij het bestemmingsplan behorende staat van bedrijfsactiviteiten en heeft tevens de functieaanduiding bedrijfswoning. Nadere informatie over het bestemmingsplan is op aanvraag beschikbaar.
Locatie Rietveldenweg 11-11B ‘s-Hertogenbosch:
De woning met bedrijfsruimte is gelegen op bedrijventerrein de Rietvelden, nabij het centrum van ‘s-Hertogenbosch. De Rietvelden is het grootste bedrijventerrein van Den Bosch en huisvest een variëteit aan ondernemingen.
De Rietveldenweg is dé verkeersader en de directe ligging aan deze weg zorgt dan ook voor veel exposure. Door de directe aansluiting aan de oprit van de A59, en met de A2 op enkele minuten afstand, kan de bereikbaarheid met de auto als uitstekend worden beschouwd. De bereikbaarheid per openbaar vervoer is, met diverse bushaltes in de directe omgeving, eveneens uitstekend. Het Centraal Station is op circa 1,5 km afstand gelegen.
Heeft u interesse in een bezichtiging wat natuurlijk het beste beeld geeft, bel gerust voor een bezichtiging.
Plattegronden
436966_2D_Begane_Grond_Rietveldenweg_11_sHertogenbosch_01.jpg
436966_2D_Eerste_Verdieping_Rietveldenweg_11_sHertogenbosch_02.jpg
436966_2D_Zolder_Rietveldenweg_11_sHertogenbosch_03.jpg
436966_2D_Berging_Rietveldenweg_11_sHertogenbosch_04.jpg
436966_2D_Zolder_Rietveldenweg_11_sHertogenbosch_05.jpg
436966_2D_Garage_Rietveldenweg_11_sHertogenbosch_06.jpg
436966_2D_Vliering_Rietveldenweg_11_sHertogenbosch_07.jpg